Ruim en duurzaam familiehuis in een kindvriendelijke buurt!
Deze in 2003 gebouwde woning beschikt over maar liefst 136 m2 woonoppervlakte, is volledig geïsoleerd en heeft een energielabel A, heeft daarnaast 4 goed formaat slaapkamers en een ruime woonkamer. De ligging is ideaal te noemen, binnen 10 minuten lopen sta je midden in het gezellige centrum van Haarlem met talloze leuke winkels, terrassen en restaurants. Daarnaast is de ligging ten opzichte van de verschillende uitvalswegen richting Amsterdam, Utrecht en Den Haag gunstig te noemen.
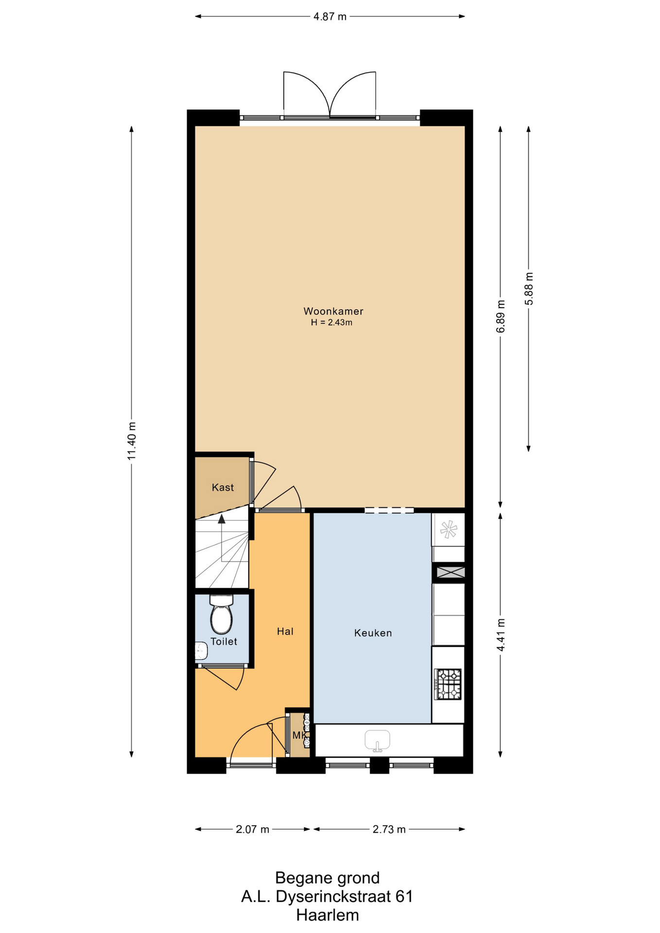
Indeling
Begane grond: entree, hal met meterkast, toilet met fontein, ruime en lichte woonkamer voorzien plavuizen vloer, gestuukt plafond met lijsten en LED verlichting, openslaande deuren naar de achtertuin met berging en achterom, vanuit de woonkamer is de half open keuken te bereiken voorzien van diverse inbouwapparatuur.
Eerste verdieping: overloop, vaste kast, ruime slaapkamer aan de voorzijde, badkamer voorzien van toilet, ligbad, douche en wastafel, ruime slaapkamer aan de achterzijde met balkon.
Tweede verdieping: slaapkamer met dakkapel, deur naar de wasruimte met wasmachine- en drogeraansluiting, Cv-opstelling en WTW-installatie, ruime vierde slaapkamer.
Bijzonderheden
– Woonoppervlakte ca. 136 m2
– Kindvriendelijke buurt
– Dichtbij het centrum van Haarlem
– Volledig geïsoleerd
– Intergas Cv-ketel 2022
– Parkeervergunning € 122,04 per jaar voor de eerste auto
– Oplevering in overleg
Deze informatie is door ons met de nodige zorgvuldigheid samengesteld. Onzerzijds wordt echter geen enkele aansprakelijkheid aanvaard voor enige onvolledigheid, onjuistheid of anderszins, dan wel de gevolgen daarvan. Alle opgegeven maten en oppervlakten zijn indicatief.
Terug naar overzichtKenmerken
| Status | Verkocht |
|---|---|
| Aanvaarding | In overleg |
| Soort | Eengezinswoning |
| Type | Tussenwoning |
| Bouwjaar | 2003 |
| Woonoppervlakte | 136 m2 |
| Oppervlakte externe bergruimte | 5 m2 |
| Inhoud | 465 m3 |
| Aantal kamers | 5 |
| Aantal slaapkamers | 4 |
| Voorzieningen | TV kabel |
| Energieklasse | A |
| Soorten warm water | CV ketel |
| Soorten verwarming | CV ketel |
| CV ketel bouwjaar | 2022 |
| Isolatievormen | Volledig geïsoleerd |
| Tuintypen | Achtertuin |
| Tuin oppervlakte | 23 m2 |
| Garage | Geen garage |
| Parkeer faciliteiten | Parkeervergunningen |
| Berging/schuur | Vrijstaand hout |


























