• PRACHTIG GELEGEN • 130 M² GEBRUIKSOPP• VOLLEDIG GERENOVEERD • ROYALE TUIN
SFEERVOLLE, ROYALE BENEDENWONING MET FIJNE TUIN EN 3 SLAAPKAMERS
Ervaar het comfort van deze prachtige, volledig gerenoveerde benedenwoning van ongeveer 130 m² midden in de Bos en Vaartbuurt, dichtbij het historische stadshart, Haarlemmerhout, het NS-station, scholen en snelwegen, en op fietsafstand van het strand.
Met drie ruime slaapkamers (een + badkamer op de begane grond) en zonnige achtertuin op het zuidoosten met een terras en apart zitje met overkapping, geniet je hier van een vrij uitzicht zonder directe buren aan de voor- of achterkant.
Deze woning ademt de sfeer van een echt woonhuis uit. De speelse indeling maakt het perfect voor (jonge) gezinnen of voor diegenen die vanuit huis willen werken en/of gelijkvloers willen wonen.
Hoge plafonds, een moderne keuken in de lichte uitbouw, modern sanitair. De grote ramen (ook met glas in lood) zorgen voor een overvloed aan licht en een fraai uitzicht aan de voorzijde over een parkje en de Leidsevaart.
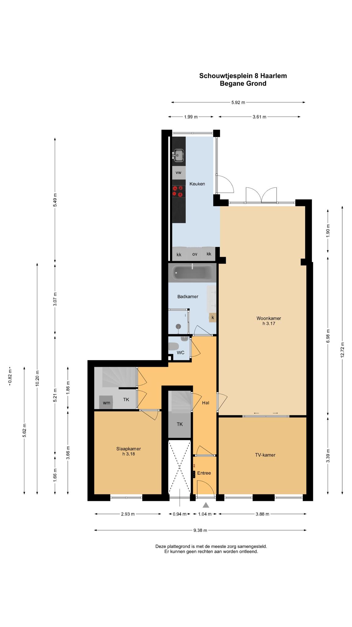
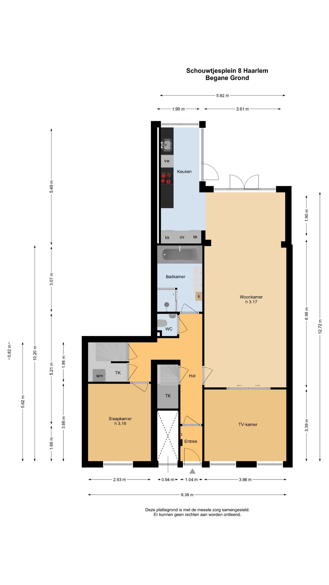
Indeling:
Voortuin met besloten zitje.
Entree via fraaie voordeur, vestibule met meterkast, diepe gang met bergkast, modern toilet met vrij hangend closet.
Riante woon-/eetkamer en suite van maar liefst ruim 49 m². De ruimte is op meerdere manieren te gebruiken en voorzien van een fraaie (geïsoleerde) visgraad gelegde eiken parketvloer en shutters voor de ramen met glas in lood aan de voorzijde.
Aan de achterzijde bevindt zich een grote woon-eetkamer met openslaande deuren en de verbinding met de compleet uitgeruste keuken (2015; koelkast, vriezer, magnetron, oven, Quooker, inductiekookplaat, vaatwasser en afzuigkap).
De keuken geeft toegang tot de fijne, zonnige achtertuin met terras, (kunst)grasveldje en overdekt 2e terras. Vrij zicht naar achteren.
Vanuit de gang bij de entree zijn tevens een royale en moderne badkamer (2015; ligbad, inloopdouche, dubbele vaste wastafel met ombouwmeubel), een lichte slaapkamer en de kast met wasmachine-aansluiting bereikbaar.
1e Verdieping:
Overloop, 2e slaapkamer van 3,73 diep en 2.98 meter breed, met hoog plafond (veel licht), voorzien van een kastenwand tot aan het plafond en shutters voor de ramen (laminaatvloer).
2e Verdieping:
Overloop, vaste kast met c.v. opstelling, 3e slaapkamer van 3,72 diep en 2.97 meter breed, met hoog plafond, veel licht en voorzien van shutters voor de ramen (laminaatvloer),
Bijzonderheden:
-Electra; 12 aut. groepen met 3 aardlekschakelaars
-Gas c.v.; Atag E325EC HR combiketel, bouwjaar 2015
-Energielabel: B
-Het hoofdhuis staat op een paalfundering, waarbij er geen scheefstand is waargenomen.
-Voorzijde voorzien van kunststof kozijnen
-Voorzijde voorzien van kunststof kozijnen
-Isolatievoorzieningen; (gedeeltelijk) voorzien van gevelisolatie, vloerisolatie (begane grond) en geheel voorzien van isolerende beglazing
-Maandelijkse bijdrage VvE: € 100,- (kleine VvE / 2 eigenaren) incl. opstalverzekering
-Vrij parkeren voor de auto
Samengevat: een heerlijk comfortabel, royaal en goed onderhouden benedenwoning op een fantastische plek in Haarlem!
Gebruiksoppervlakte : 129.6 m² *
Inhoud : 505 m³
Oplevering : in overleg / eind december / januari 2025
* De Meetinstructie is gebaseerd op de NEN2580. De Meetinstructie is bedoeld om een meer eenduidige manier van meten toe te passen voor het geven van een indicatie van de gebruiksoppervlakte. De Meetinstructie sluit verschillen in meetuitkomsten niet volledig uit, door bijvoorbeeld interpretatieverschillen, afrondingen of beperkingen bij het uitvoeren van de meting.
Terug naar overzichtKenmerken
| Status | Verkocht |
|---|---|
| Aanvaarding | In overleg |
| Soort | Eengezinswoning |
| Type | Tussenwoning |
| Bouwjaar | 1902 |
| Woonoppervlakte | 130 m2 |
| Oppervlakte externe bergruimte | 0 m2 |
| Inhoud | 505 m3 |
| Aantal kamers | 4 |
| Aantal slaapkamers | 3 |
| Voorzieningen | Mechanische ventilatie, TV kabel |
| Energieklasse | B |
| Soorten warm water | CV ketel |
| Soorten verwarming | CV ketel |
| CV ketel bouwjaar | 2015 |
| Isolatievormen | Vloerisolatie, Dubbelglas |
| Tuintypen | Achtertuin, Voortuin |
| Tuin oppervlakte | 55 m2 |
| Garage | Geen garage |
| Parkeer faciliteiten | Openbaar parkeren |






















































