**English text below**
Gezellig familiehuis in hartje Overveen
Dit sfeervolle familiehuis ligt aan de rustige Oranje Nassaulaan, op loopafstand van de dorpskern en het station van Overveen. Een ideale locatie op fietsafstand van winkels, scholen, de Haarlemse binnenstad en het strand en de duinen. De huidige bewoners hebben met veel plezier in deze jaren 20 tussenwoning gewoond met hun opgroeiende kinderen. Nu geven zij graag het stokje over aan de nieuwe bewoners.
De woning is voorzien van authentieke details zoals sfeervolle erker, paneeldeuren en hoge plafonds. Vanuit de gezellige living met half open keuken en eethoek heb je toegang tot de zonnige achtertuin (zuidligging) met achterom en stenen schuur. Op de 2 slaapverdiepingen zijn er 5 slaapkamers en een ruime badkamer. Op de 2e verdieping is een goede wasruimte gecreëerd.
In de voortuin is ruimte voor de fietsen en een elektrische laadpaal voor de auto. Parkeren kan voor de deur via een vergunning.
Overveen is een geliefde woonomgeving voor gezinnen met opgroeiende kinderen. Een rustige, kindvriendelijke buurt met alle faciliteiten in de directe omgeving. U bent van harte welkom voor een persoonlijke bezichtiging in de Oranje Nassaulaan 82!
Indeling:
Begane grond: Entree, hal met trapkast en toilet, gezellige living met erkerraam, eethoek en half open (teakhouten) keuken, schuifdeur naar de zonnige achtertuin met achterom en stenen schuur. Trap naar ……
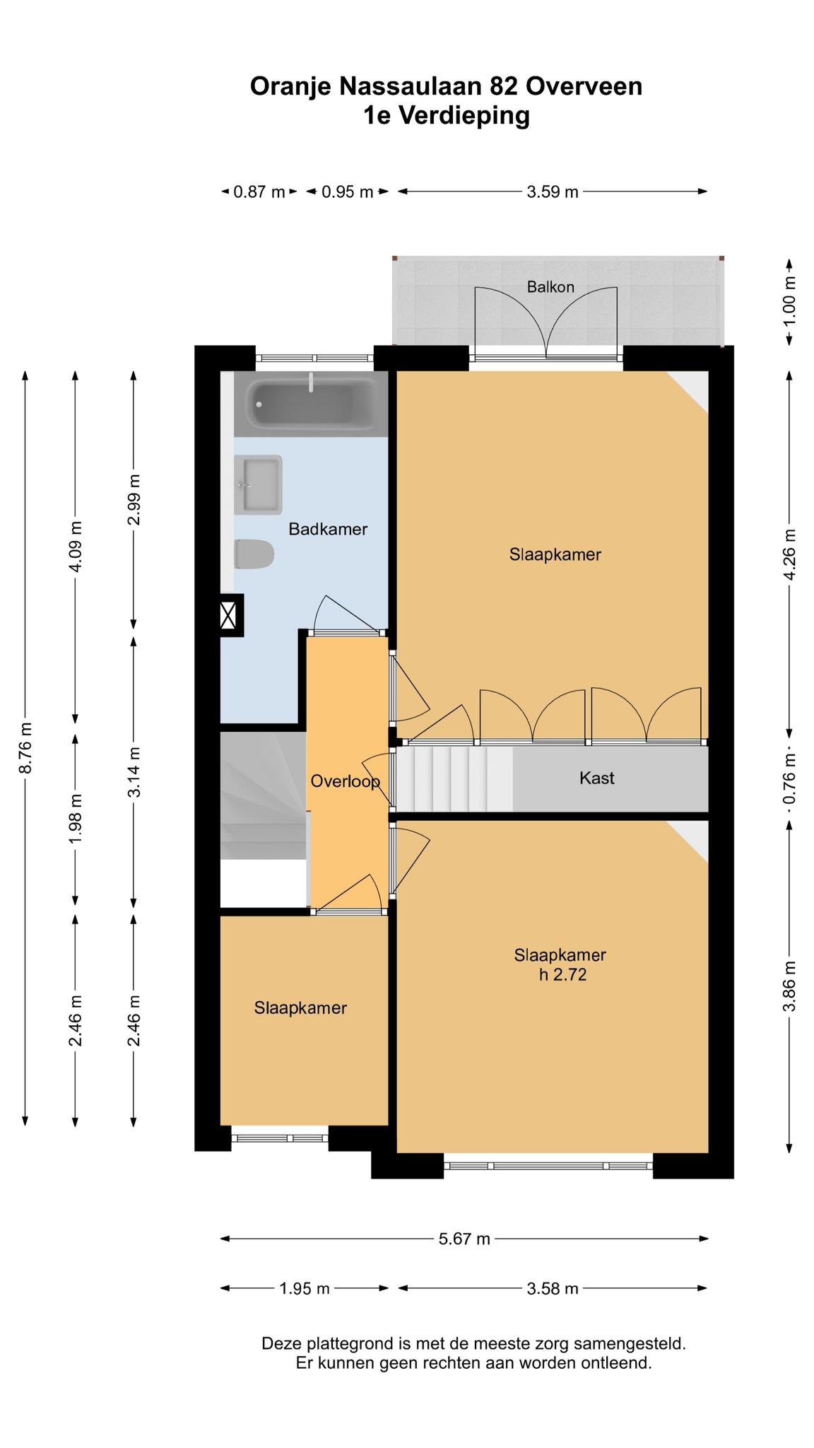
1e Verdieping: Overloop, 1e ruime slaapkamer aan de achterzijde met balkon, 2e ruime slaapkamer/werkkamer aan de voorzijde, 3e kleine slaapkamer aan de voorzijde, badkamer met ligbad, inloopdouche, dubbele wastafel en toilet. Trap naar ….
2e Verdieping: Overloop, 4e ruime slaapkamer met dakkapel aan de achterzijde, 5e kleine slaapkamer aan de voorzijde, ingebouwde kasten voor de wasmachine en CV ketel.
Kenmerken:
• Woonoppervlakte: 139 m²
• Perceeloppervlakte: 157 m²
• Bouwjaar: 1924
• Voorzien van 6 zonnepanelen, dubbelglas, dak- en vloerisolatie
• Energielabel: D
• Met 5 slaapkamers een fijn familiehuis
• Zonnige achtertuin op het zuiden
• Voortuin met laadpaal voor elektrische auto
• Gelegen in rustige, kindvriendelijke straat
• Op loopafstand van de dorpskern en station Overveen
• Op fietsafstand van winkels, scholen en sportaccommodaties
• Op fietsafstand van de Haarlemse binnenstad, diverse natuurgebieden, het stand en de duinen
• Oplevering in overleg
Deze informatie is door ons met de nodige zorgvuldigheid samengesteld. Onzerzijds wordt echter geen enkele aansprakelijkheid aanvaard voor enige onvolledigheid, onjuistheid of anderszins, dan wel de gevolgen daarvan. Alle opgegeven maten en oppervlakten zijn indicatief.
**English text**
Charming family home in the heart of Overveen
Nestled in the peaceful and charming Oranje Nassaulaan, just a stone’s throw from the village center and Overveen train station, you’ll find this beautiful 1920s family home. It’s an ideal location for families, with all amenities close by: schools, shops, the vibrant Haarlem city center, and the stunning coast with its beaches and dunes, all within easy cycling distance.
The current owners have enjoyed living in this characterful terraced home for many years. Now, they are ready to pass the key to new residents looking for a warm and inviting home. The house has authentic charm, featuring details like a cozy bay window, high ceilings, and classic panel doors. The bright living room with a semi-open kitchen and dining area offers a lovely view and access to the sunny, south-facing back garden. The garden also has a convenient back entrance and a stone shed. The house has five bedrooms spread across two floors, along with a spacious bathroom. The second floor includes a practical laundry area.
The front garden provides space for bikes and a charging station for an electric car. You can park wit a permit in the street, in front of the house.
Overveen is a family-friendly neighborhood, perfect for those looking for peace and space. All necessary amenities are within walking distance, and the area is surrounded by nature and a vibrant shopping street.
Come and experience it for yourself! We welcome you for a personal viewing at Oranje Nassaulaan 82.
Layout:
Ground Floor: Entrance, hall with staircase closet and toilet. Cozy living room with bay window, dining area, and semi-open teak kitchen. The sliding door from the living room leads to the sunny back garden (with back entrance and stone shed).
First Floor: Landing. Spacious bedroom at the rear with balcony. Second bedroom or office at the front, and a third smaller bedroom. Modern bathroom with bathtub, walk-in shower, double sink, and toilet.
Second Floor: Landing. Fourth bedroom with dormer window at the rear. Fifth bedroom at the front. Handy laundry area with built-in closets for the washing machine and boiler.
Features:
Living area: 139 m²
Plot size: 157 m²
Year of construction: 1924
Solar panels (6), double glazing, roof and floor insulation
Energy label: D
5 bedrooms: ideal for a large family
Sunny south-facing back garden
Front garden with electric car charging station
Located in a quiet, family-friendly street
Walking distance to the village center and Overveen train station
Cycling distance to Haarlem, shops, schools, nature, and the beach
Delivery in consultation
This information has been compiled by us with due care. However, no liability is accepted on our part for any incompleteness, inaccuracy or otherwise, or the consequences thereof. All specified sizes and surfaces are indicative.
Terug naar overzichtKenmerken
| Status | Verkocht |
|---|---|
| Aanvaarding | In overleg |
| Soort | Eengezinswoning |
| Type | Tussenwoning |
| Bouwjaar | 1924 |
| Woonoppervlakte | 139 m2 |
| Oppervlakte externe bergruimte | 5 m2 |
| Inhoud | 495 m3 |
| Aantal kamers | 6 |
| Aantal slaapkamers | 5 |
| Voorzieningen | Mechanische ventilatie, Buitenzonwering, Schuifpui, Zonnepanelen |
| Energieklasse | D |
| Soorten warm water | CV ketel |
| Soorten verwarming | CV ketel |
| CV ketel bouwjaar | 2005 |
| Isolatievormen | Dakisolatie, Vloerisolatie, Grotendeels dubbelglas, HR glas |
| Tuintypen | Achtertuin, Voortuin |
| Tuin oppervlakte | 56 m2 |
| Garage | Geen garage |
| Parkeer faciliteiten | Openbaar parkeren |
| Berging/schuur | Vrijstaand hout |








































