Prachtig gerenoveerd stadsappartement, omringd door het beste dat Haarlem te bieden heeft. Gelegen tussen het schilderachtige Spaarne en de iconische Koepel, met openbaar vervoer en uitvalswegen “om de hoek”.
Gelegen op de begane grond, van een in 2019 gerenoveerd gebouw. Het appartement heeft aan de achterzijde een tuin en heeft een fijne lichtinval wat de ruimte een frisse uitstraling geeft.
Op enkele minuten loopafstand bent u bij de Koepel voor de bioscoop, Oerkap voor een borrel of bij het Spaarne om heerlijk in de zon te zitten. Met 3 minuten fietsen bent u in de binnenstad van Haarlem met een royaal aanbod aan winkels, restaurants en parken. De A9 is binnen 5 minuten met de auto te bereiken en het station Haarlem binnen 5 minuten fietsen.
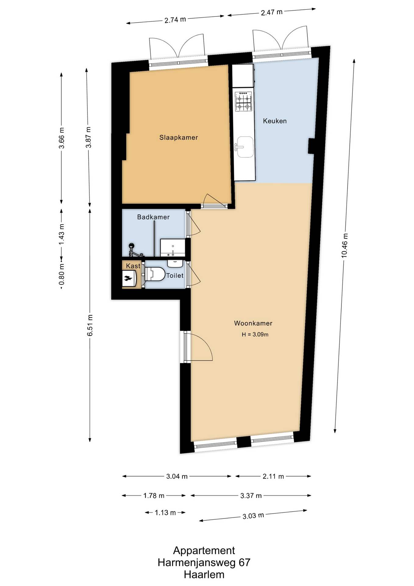
Indeling
Begane grond: afgesloten gezamenlijke entree met meterkast, brievenbus, entree appartement, woonkamer met open keuken met inbouwapparatuur, een aansluit mogelijkheid voor wasmachine en openslaande deuren naar de tuin, toilet met fontein en vaste kast met cv-ketel, slaapkamer met openslaande deuren naar de tuin, badkamer met inloopdouche en wastafel.
Bijzonderheden
– Woonoppervlakte ca. 46m²
– Parkeren middels vergunning of betaald
– Renovatie in 2019
– Volledig geïsoleerd, energielabel A
– Op loopafstand van de vernieuwde Koepel, Oerkap en molen Adriaan
– Actieve VvE
– Servicekosten ca. €208,39,- per maand
– Notaris keuze verkoper, notaris Huisman
Deze informatie is door ons met de nodige zorgvuldigheid samengesteld. Onzerzijds wordt echter geen enkele aansprakelijkheid aanvaard voor enige onvolledigheid, onjuistheid of anderszins, dan wel de gevolgen daarvan. Alle opgegeven maten en oppervlakten zijn ter indicatie.
Terug naar overzichtKenmerken
| Status | Verkocht |
|---|---|
| Aanvaarding | In overleg |
| Soort | Benedenwoning |
| Bouwjaar | 1905 |
| Woonoppervlakte | 46 m2 |
| Oppervlakte externe bergruimte | 0 m2 |
| Inhoud | 200 m3 |
| Aantal kamers | 2 |
| Aantal slaapkamers | 1 |
| Voorzieningen | Mechanische ventilatie, TV kabel, Glasvezel kabel, Natuurlijke ventilatie |
| Energieklasse | A |
| Soorten warm water | CV ketel |
| Soorten verwarming | CV ketel |
| CV ketel bouwjaar | 2019 |
| Isolatievormen | Dakisolatie, Muurisolatie, Vloerisolatie, Dubbelglas, Volledig geïsoleerd |
| Tuintypen | Achtertuin |
| Tuin oppervlakte | 0 m2 |
| Garage | Geen garage |
| Parkeer faciliteiten | Betaald parkeren, Parkeervergunningen |


















